Hlavní stránka > Balicí technika > Paketovací lisy > EKOPACK 300.2-E Profi
Hydraulický paketovací lisEKOPACK 300.2-E Profi
Paketovací lisy EKOPACK vyhovují i těm nejnáročnějším požadavkům našich zákazníků s důrazem na dlouhou životnost a spolehlivost. Použitím více kontejnerů nebo postupným zpracováním různých materiálů můžete odpad efektivně třídit. Přispíváte tak k ochraně životního prostředí a šetříte skladové prostory, čas i peníze. Jejich provoz je ekologicky nezávadný a obsluha velmi jednoduchá.
- Bezpečné a jednoduché ovládání
- Operační řídicí systém
- Hlášení poruch
- Nezávislé hydraulické vyklápění balíků (paketů)
Tel.: +420 234 144 755
Mobil: +420 732 107 132
E-mail: petr.novak@pragometal.com
Lis EKOPACK 300.2-E Profi je navíc vybaven pohon lisovací hlavicí vpravo i vlevo, což zjednodušuje práci obslužného personálu.
Lisy stabilní konstrukce s pevnou lisovací komorou, na které je uložená posuvná lisovací hlavice. Přítlak je realizován hydraulickým válcem s možností regulace přítlačné sily, což zaručuje dlouhodobou spolehlivost při dosažení vysokého měrného tlaku. Lisovací prostor je plněn z vrchu. Systém předních dveří a vyklápění balíku umožňuje jednoduché vyjmutí zlisovaného balíku z lis. komory. Konstrukce komory umožňuje 4x svázání balíku vázací PE páskou nebo drátem. Lis je koncipován pro možnost rozšíření počtu lisovacích komor při jedné lisovací jednotce (zvýšení kapacity lisu s min. pořizovacími náklady, třídění lis. materiálu).
Použití
Hydraulický lis s lisovací silou 30tun (slisovaný balík na 1 celou paletu) určený pro obchodní domy, sběrná centra, výkupny druhotních surovin, supermarkety, sklady, malé střední i velké podniky.
| Max. lisovací síla | 30 t + 5 % |
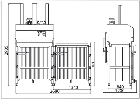
| Vnější rozměry (DxŠxV) (mm) | 2680x1200x2920 |
| Rozměry paketu (DxŠxV) (mm) | 1200x800x1280 |
| Hmotnost paketu (kg) | max. 500 |
| Druh lisu | hydraulický |
| Měrný lisovací tlak (kPa) | max. 320 |
| Elektrický příkon 3x400V/50Hz (kVA) | 3,5 |
| Počet lisovacích komor | 2 |
| Počet vázacích míst | 4 |
| Elektrické krytí | IP 54 |
| Čas lisovacího cyklu (s) | 36 |
| Hmotnost lisu (kg) | 2 450 |
+420 234 144 736
+420 234 144 710




